104 Swan Park Lane 22Statesville, NC 28625




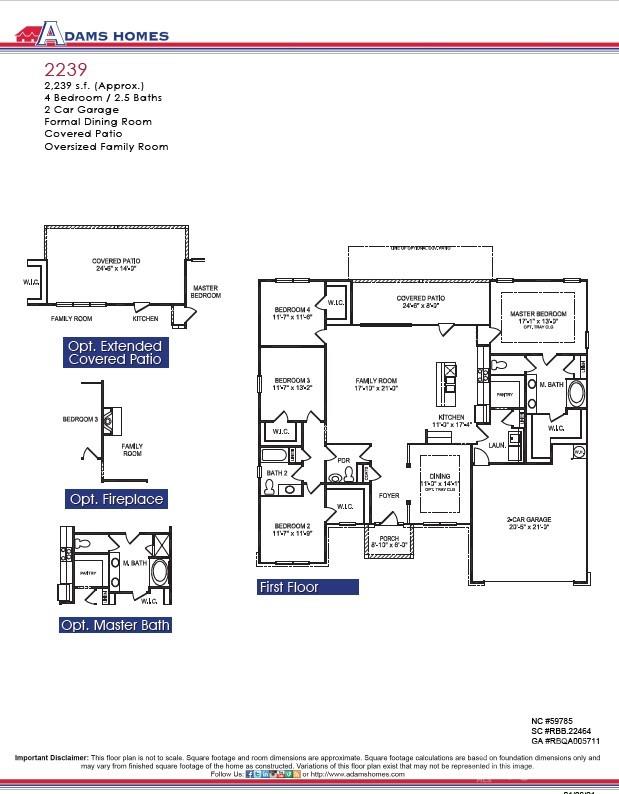
The 2239 floor plan by Adams Homes is spacious and has a well appointed layout with beautiful architectural features. The kitchen features a center island with breakfast bar and upgraded gourmet appliances. The primary is nestled away from the main living area that boasts a tray ceiling and a private ensuite bathroom. The primary bathroom features dual vanities, separate water closet, tiled shower with bench and a large walk-in closet. The additional three bedrooms are placed on the other side of the home. Step outside onto the covered deck, where you can enjoy outdoor living. The professionally landscaped yard adds beauty and enhances the overall curb appeal of the home. Coffered ceilings, window box wainscoting, gridded window panes along with all the other luxuries says it all. All packaged at $161 per square foot. Up to $5K Flex Cash is available to use towards rate buydown and pre-paids with the use of one of our 4 preferred lenders. Standard closing costs are paid by the seller.
| yesterday | Listing first seen on site | |
| yesterday | Listing updated with changes from the MLS® |
Listings courtesy of Canopy MLS as distributed by MLS GRID
Some IDX listings have been excluded from this website. The data relating to real estate on this website derive in part from the Internet Data Exchange program. Brokers make an effort to deliver accurate information, but buyers should independently verify any information on which they will rely on a transaction. All properties are subject to prior sale, change or withdrawal. Neither the publisher of this website nor any listing broker shall be responsible for any typographical errors, misinformation, or misprints, and they shall be held totally harmless from any damages arising from reliance upon this data. This data is provided exclusively for consumers’ personal, non-commercial use and may not be used for any purpose other than to identify prospective properties they may be interested in purchasing. Based on information submitted to the MLS GRID as of 2025-11-03 04:55 AM UTC. All data is obtained from various sources and may not have been verified by broker or MLS GRID. Supplied Open House Information is subject to change without notice. All information should be independently reviewed and verified for accuracy. Properties may or may not be listed by the office/agent presenting the information. ©2025 Canopy MLS.
The Digital Millennium Copyright Act of 1998, 17 U.S.C. § 512 (the “DMCA”) provides recourse for copyright owners who believe that material appearing on the Internet infringes their rights under U.S. copyright law. If you believe in good faith that any content or material made available in connection with our website or services infringes your copyright, you (or your agent) may send us a notice requesting that the content or material be removed, or access to it blocked. Notices must be sent in writing by email to [email protected]. “The DMCA requires that your notice of alleged copyright infringement include the following information: (1) description of the copyrighted work that is the subject of claimed infringement; (2) description of the alleged infringing content and information sufficient to permit us to locate the content; (3) contact information for you, including your address, telephone number and email address; (4) a statement by you that you have a good faith belief that the content in the manner complained of is not authorized by the copyright owner, or its agent, or by the operation of any law; (5) a statement by you, signed under penalty of perjury, that the information in the notification is accurate and that you have the authority to enforce the copyrights that are claimed to be infringed; and (6) a physical or electronic signature of the copyright owner or a person authorized to act on the copyright owner’s behalf. Failure to include all of the above information may result in the delay of the processing of your complaint.
Last checked - 2025-11-03 04:55 AM UTC


Did you know? You can invite friends and family to your search. They can join your search, rate and discuss listings with you.