2210 Winding River Dr

Charlotte, NC 28214 (MLS #4264279)
Bedrooms
3
Bathrooms
2.5
Square Ft.
2226
$475,000
This is the home you've been waiting for, to hit the market in the popular Riverbend community! It has the updates you want, without having to get them completed on your own! Downstairs, you'll find a Dining Room connected to the Kitchen and an open layout that has the KitchenRead MoreRead Less
Features
Bedrooms
3
Bathrooms
2.5
Square Ft.
2226
Garages
2
Mortgage Calculator
Monthly Payment
$0
Scott Hartis
I help professionals in Charlotte move-up, using my Perfect Transition Method.
Scott Hartis profile image
Please Select Date
Please Select Type

Community Amenities

tempImageEQEa8e
tempImage7Jkq62
IMG_7532-2-3

What We ❤️ About It

❤️ Location - This home is only minutes from Uptown Charlotte, and an easy drive to other areas, since it isn't far from the interstate.

❤️ The Back Yard - The fully fenced back yard, is perfect for entertaining your family and friends! Plus, with a large storage shed, you'll have room for yard tools and toys!

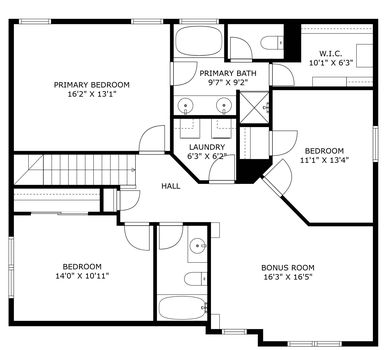
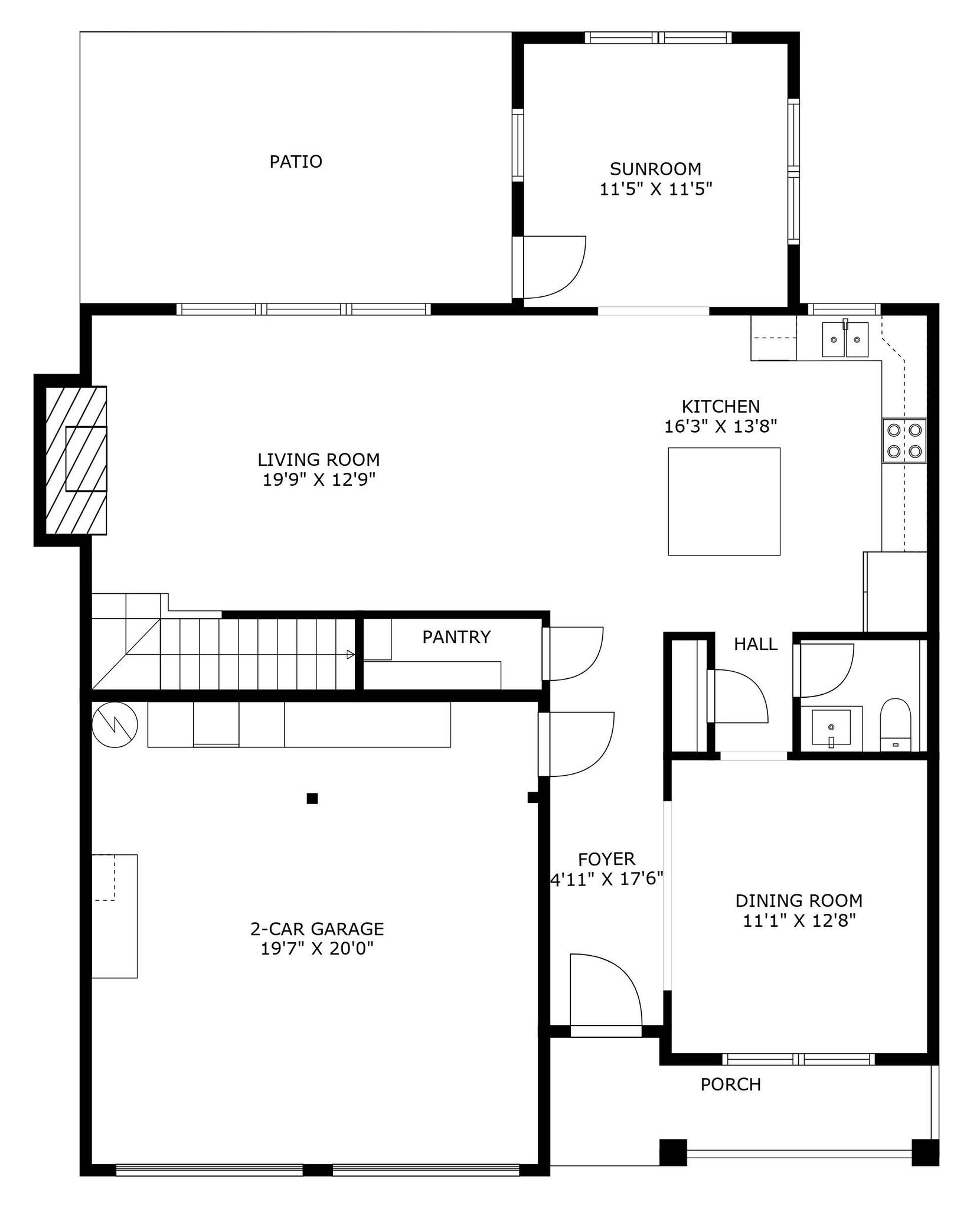
❤️ Floor Plan - The layout is open between the Kitchen, Living Room, and Sunroom. (Take a look at the 3D virtual tour above, or floor plan below.)

❤️ The Sunroom - this space could be used as a breakfast room, sitting room, or a sunroom. It's flooded with natural light!

Floor Plan (Click to enlarge)

1st floor -2210 Winding River Dr floorplan
2nd floor -2210 Winding River Dr floorplan